- rozšíření Autodesk Revit

CS R Tools je rozšiřující nástroj vyvinutý společností Controlis Solutions pro projektanty, který výrazně zefektivňuje práci v prostředí Autodesk Revit. Patří do balíčku CS Tools a je optimalizován pro verzi 2023-26.
Nejde o složité řešení – jde o chytré pomocníky, kteří šetří desítky minut denně.
Partnerství, které zvyšuje produktivitu a vede k úspěchu.


Historie elementu je nástroj, který během práce zaznamenává, kdo upravoval, jaký prvek a vede auditní stopu nad jednotlivými komponentami Revitu.

Nástroj umožňuje automatizované spojování geometrie mezi prvky různých kategorií (např. podlahy, stěny, stropy). Uživatel volí primární a sekundární kategorii – podle toho se určí, které prvky budou mít při spojování přednost a které budou oříznuty. Nastavené kombinace je možné uložit a znovu použít. Využití tohoto nástroje vede ke značnému zrychlení a sjednocení spojování geometrie při modelování, bez potřeby ručního připojování jednotlivých prvků.

Tento nástroj rozdělí složené stěny (např. vícevrstvé konstrukce) na jednotlivé samostatné stěny podle vrstev původní skladby, se kterými můžete dále pracovat. Při rozložení je respektováno pořadí a jednotlivé propojení vrstev mezi sebou na základě nastavení priorit v původní skladbě. Pokud jsou ve stěně prvky (dveře, okna,...) jsou vždy po rozložení vloženy do nosné části stěny.

Automaticky vypočítá a zapíše do parametrů místnosti její maximální, minimální a převažující světlou výšku. To znamená, že pokud je v místnosti zalomený strop nebo podhled, vypíše minimální výšku, maximální výšku, ale také výšku, která je ve většině místnosti. Odpadá tím potřeba manuálního zjišťování výšek a jejich zadávání – ideální pro výkazy, kontrolu nebo výstupy pro klienta. Pro správné fungování nástroje, je potřeba vždy nastavit, do kterých parametrů chcete výšky zapisovat. Tyto parametry se určují přes nastavení R Tools.

Umožňuje zviditelnit prvky, které jsou nad řezovou rovinou půdorysu, a normálně by nebyly vidět. Nástroj umožňuje propsat hrany prvků nad rovinou řezu do půdorysných pohledů pomocí symbolické čáry do roviny podlaží, ve kterém se prvky mají zobrazit. Zajistí tak zjednodušení práce bez nutnosti ručních úprav, aby bylo dosaženo správného zobrazení dle normy a zvyklostí.

Na základě umístěných místností v půdoryse umožňuje nástroj automaticky vytvořit podlahy přesně podle jejich obrysů. Pro každou místnost lze nastavit typ podlahy i výškové odsazení. Nástroj respektuje rozvržení místnosti a umožňuje tak vkládat jednoduše podlahy přesně tam, kam uživatel potřebuje a tím šetří čas při modelování podlah, zejména v rozsáhlých objektech.

Výchozí umístění odkazové čáry na obrys komponenty často neumožňuje jasně identifikovat, ke kterému prvku se vztahuje. Nástroj Odkazová čára řeší tento problém přesunutím počátku odkazové čáry na bod vložení rodiny prvku pro vybrané prvky. Tímto způsobem dosáhne zvýšené srozumitelnosti výkresu.

Nástroj Zarovnání popisek umožňuje zarovnat vybrané popisky podle existující referenční čáry. Funkce přispívá k jednotnému a profesionálnímu vzhledu výkresu s lepší orientací v technické dokumentaci.

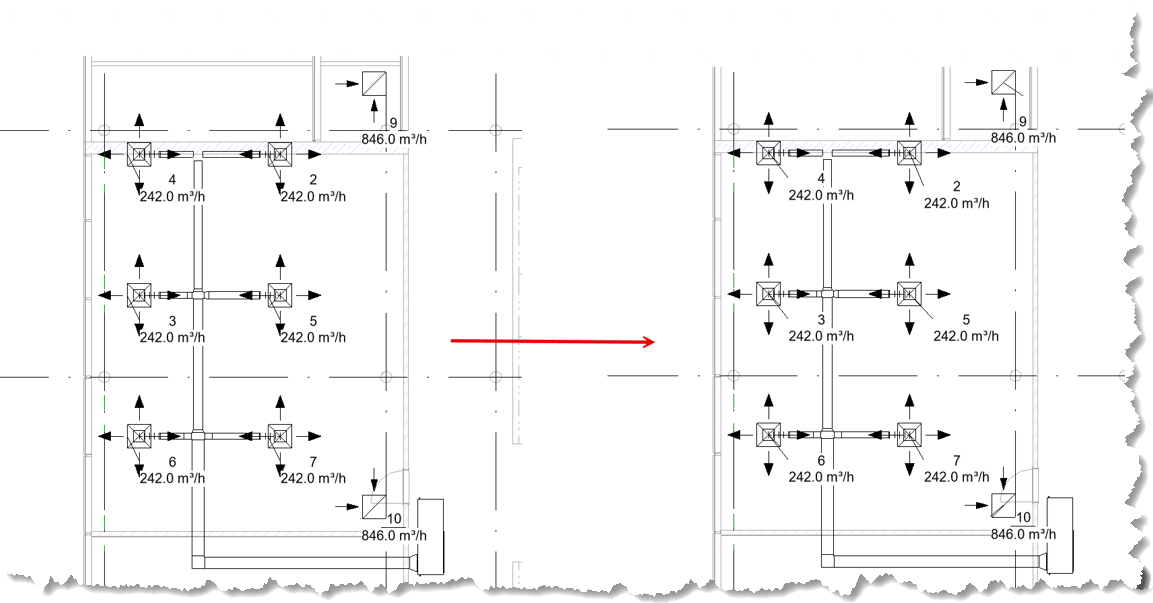
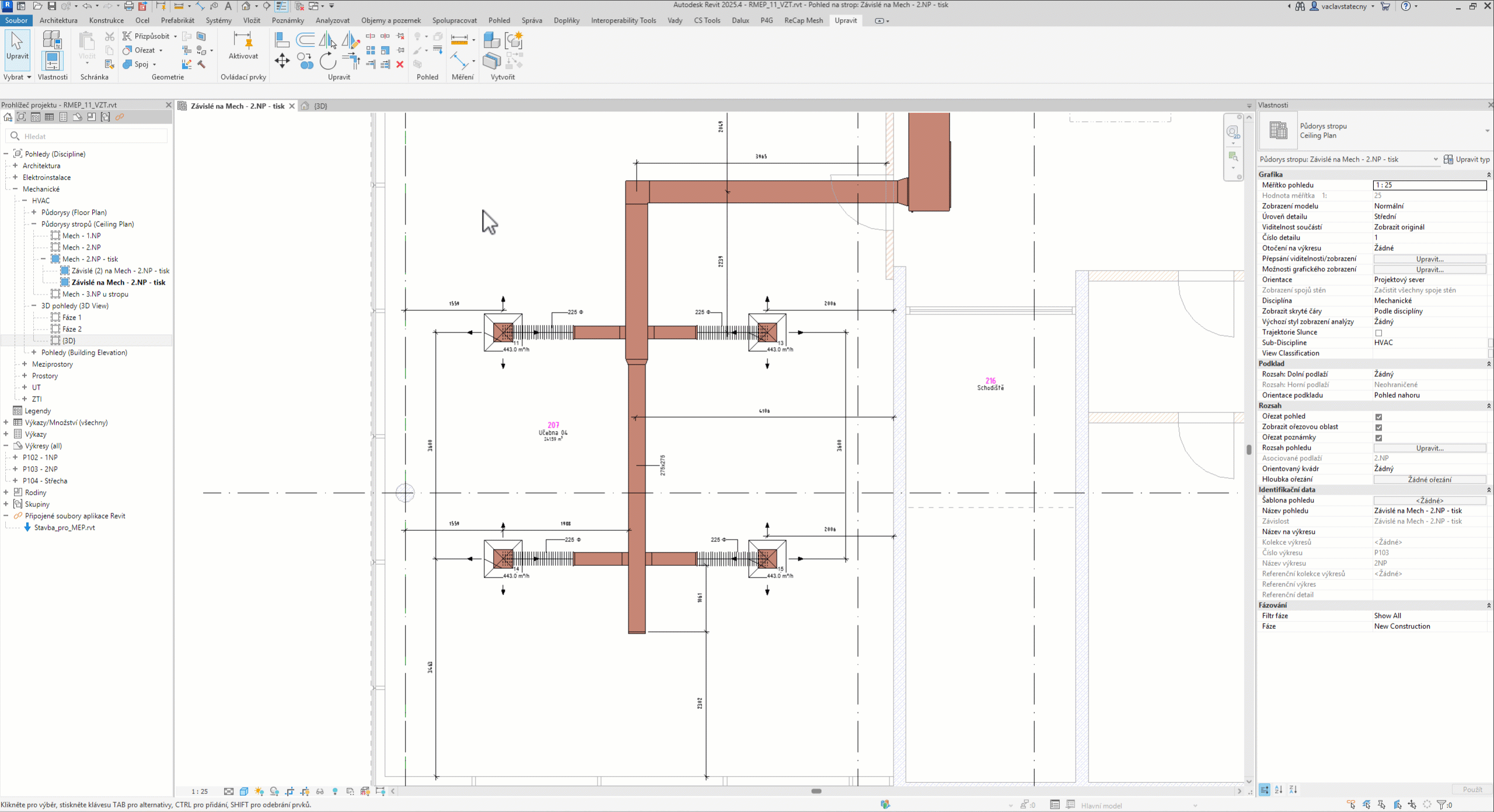
Nástroj Popis potrubí automaticky umisťuje popisky do vybraných potrubních větví v místech, kde dochází ke změně hodnoty parametru. Pokud je do popisky např. zahrnut parametr DN potrubí, automaticky se vloží v bodě změny dimenze. Tímto způsobem je zajištěna úplnost a přesnost technické dokumentace bez nutnosti ruční editace.

Nástroj Zarovnání popisů v axonometrii automaticky zarovnává popisky umístěné v axonometrických pohledech podle předem určené hranice. Výsledkem je čitelný technický výkres.

Pro stažení TRIAL verze můžete využít odkaz nebo nás kontaktovat přes formulář níže.

Key Account Manager, BIM & CDE
Franta je projektový manažer s více než 20 lety zkušeností v prodeji, školení a zavádění projektů v oblasti 3D modelování, procesů, monitoringu a správy dat. Vystudoval výrobní a inovační inženýrství na ČVUT v Praze.
Během své kariéry dosáhl několika významných profesních úspěchů, včetně úspěšného zavádění 3D modelovacích technologií, což vedlo k výraznému zlepšení přesnosti a efektivity projektů. Vedl mnoho workshopů, kde předával své znalosti a zkušenosti dalším profesionálům, čímž přispěl k jejich rozvoji a růstu. Přispěl k vývoji a implementaci inovativních řešení pro monitoring a správu dat, které pomohly optimalizovat procesy a zvýšit produktivitu. Úspěšně řídil řadu komplexních projektů, které byly dokončeny včas a v rámci rozpočtu, což přineslo významné výhody pro jeho zaměstnavatele a klienty.
Key Account Manager, BIM & CDE
Jirka je Key Account Manager s bohatými zkušenostmi v oblasti obchodu, servisu a financování se zaměřením na dopravu a techniku. Od roku 2019 se specializuje nejen na obchodní pozice, ale také na oblast Customer Success v oblastech zavádění BIM, implementaci softwaru a vzdělávání. Vystudoval obchod a podnikání s technikou na Technické fakultě ČZU v Praze.
Rádi se vám nezávazně ozveme a zašleme vám nebo telefonicky sdělíme více informací o našich službách, nabízeném software, integracích a školení či konzultací, stačí vyplnit formulář.
+420 488 055 515